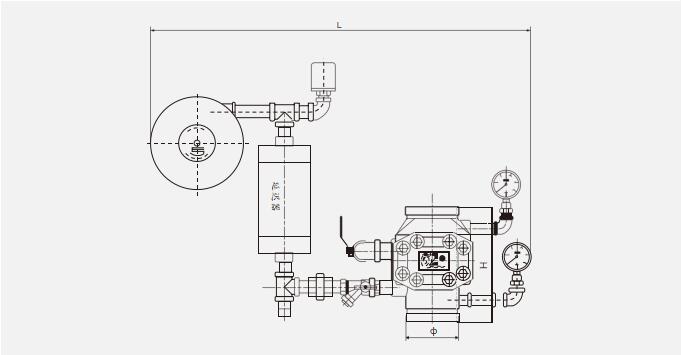
- ZSFZ(G)湿式报警阀系统是自动喷水灭火系统中一种常 用的固定灭火系统, 它由湿式报警阀(含阀组 、水力警铃 、延 迟器 、压力开关等) 、水流指示器 、消防信号阀及闭式喷头等 组成。该系统长期处于备用工作状态,管网内充满压力水,当 保护区域内某处发生火灾时 ,环境温度升高 ,使喷头上的温 度敏感元件(玻璃球)动作 ,密封组件脱落, 自动启动系统 ,将 水直接喷向火灾发生区域 ,并发出警报信号以达到报警 、灭 火、控火目的。适用于能用水灭火的建筑物,通常安装与有火 灾危险的生产场所 、仓库 、宾馆 、商场 、 医院 、剧院 、办公 楼、高层建筑及车库等。
|
型号规格 |
额定工作 压力 (MPa) |
密封试验 压力 (MPa) |
强度试验 压力 (MPa) |
公称通径 ( mm) |
报警阀高度 H(mm) |
沟槽连接外径 φ( mm) |
**安装宽度 L(mm) |
|
ZSFZ80(G) |
1 .6 |
3.2 |
6.4 |
80 |
225 |
89 |
800 |
|
ZSFZ100(G) |
|
|
|
100 |
245 |
114 |
820 |
|
ZSFZ125(G) |
|
|
|
125 |
250 |
140 |
840 |
|
ZSFZ150(G) |
|
|
|
150 |
270 |
165 |
860 |
|
ZSFZ200(G) |
|
|
|
200 |
360 |
219 |
900 |
-
ZSFZ湿式报警阀ZSFZ湿式报警阀系统是自动喷水灭火系统中一种常用的固定灭火系统,它由湿式报警阀(含阀组、水 力警铃 、延迟器 、压力开关等)、水流指示器、消防信 号阀及闭式喷头等组成。该系统长期…查看详情
-
ZSFZ(G)湿式报警阀(沟槽式)ZSFZ(G)湿式报警阀系统是自动喷水灭火系统中一种常 用的固定灭火系统, 它由湿式报警阀(含阀组 、水力警铃 、延 迟器 、压力开关等) 、水流指示器 、消防信号阀及闭式喷头等 组成。该…查看详情
-
ZSFM雨淋报警阀ZSFM系列隔膜雨淋阀采用三种控制方式控制主阀开启灭火 。 主阀开启后,压力进入压力开关和水力警铃发出警声:压力开关向控制 中心发出信号和开启消防泵 。 隔膜雨淋阀具有防复位结构…查看详情
-
ZSFY预作⽤装置ZSFY预作用装置主要由预作用报警阀组,预作用装置控制盘,气压维持装置,空气供给装置组成。ZSFY型预作用装置是将火灾探测报警技术和自动喷水灭火系统结合起来,对保护对象起双重保护…查看详情


