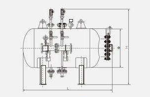
压力式比例混合装置是由泡沫液储罐、胶囊、压力式比例混合器、安全阀、控制阀门及相应配套管件组成。适用于3%或6%混合比的泡沫液。该装置适用于油库储罐区、化工厂、燃油发电厂、地下车库、危险品仓库等场所。也可用于水喷淋-泡沫连用系统供液设备。
|
型号规格 |
储罐体积(m3) |
H/mm |
L/mm |
Φ/mm |
密封试验压力/MPa |
强度试验压力/MPa |
工作压力/MPa |
混合比 |
|
|
PHYML |
32/10 |
1 |
2420 |
1230 |
1016 |
1.32 |
1.5 |
0.6~1.2 |
3%或6% |
|
32/15 |
1 .5 |
3040 |
1320 |
||||||
|
32/20 |
2 |
2970 |
1530 |
1220 |
|||||
|
PHYM |
32/10 |
1 |
1770 |
2080 |
916 |
||||
|
32/15 |
1 .5 |
1870 |
2400 |
1060 |
|||||
|
32/20 |
2 |
1970 |
2600 |
1116 |
|||||
|
48/30 |
3 |
2070 |
3160 |
1216 |
|||||
|
80/50 |
5 |
2270 |
3800 |
1420 |
|||||
|
80/100 |
10 |
2680 |
4850 |
1824 |
|||||
-
ZSFZ湿式报警阀ZSFZ湿式报警阀系统是自动喷水灭火系统中一种常用的固定灭火系统,它由湿式报警阀(含阀组、水 力警铃 、延迟器 、压力开关等)、水流指示器、消防信 号阀及闭式喷头等组成。该系统长期…查看详情
-
ZSFZ(G)湿式报警阀(沟槽式)ZSFZ(G)湿式报警阀系统是自动喷水灭火系统中一种常 用的固定灭火系统, 它由湿式报警阀(含阀组 、水力警铃 、延 迟器 、压力开关等) 、水流指示器 、消防信号阀及闭式喷头等 组成。该…查看详情
-
ZSFM雨淋报警阀ZSFM系列隔膜雨淋阀采用三种控制方式控制主阀开启灭火 。 主阀开启后,压力进入压力开关和水力警铃发出警声:压力开关向控制 中心发出信号和开启消防泵 。 隔膜雨淋阀具有防复位结构…查看详情
-
ZSFY预作⽤装置ZSFY预作用装置主要由预作用报警阀组,预作用装置控制盘,气压维持装置,空气供给装置组成。ZSFY型预作用装置是将火灾探测报警技术和自动喷水灭火系统结合起来,对保护对象起双重保护…查看详情


